leányfalu 59

A tökéletes otthon, ha fontos a kényelem, a funkció és a családi harmónia.

leányfalu 59 – Modern otthon tudatos tervezéssel

A Leányfalu 59 típusterv a modern élethez igazodó, okos térszervezéssel rendelkező otthon, amely tökéletes választás lehet pároknak vagy kisgyermekes családoknak. Letisztult formavilága és kompakt mérete miatt kiválóan illeszkedik kertvárosi vagy vidéki környezetbe. Az 59 m²-es otthon a praktikusságot ötvözi a stílusos kialakítással – minden négyzetmétere a kényelmet szolgálja. Az acélszerkezet gyors építést és kiemelkedő élettartamot biztosít, miközben energiahatékony megoldásaival hosszú távon is gazdaságos fenntartást kínál. A Leányfalu 59 típusterv valódi értéket képvisel – időtálló, élhető és szerethető otthon.

alapvető paraméterek

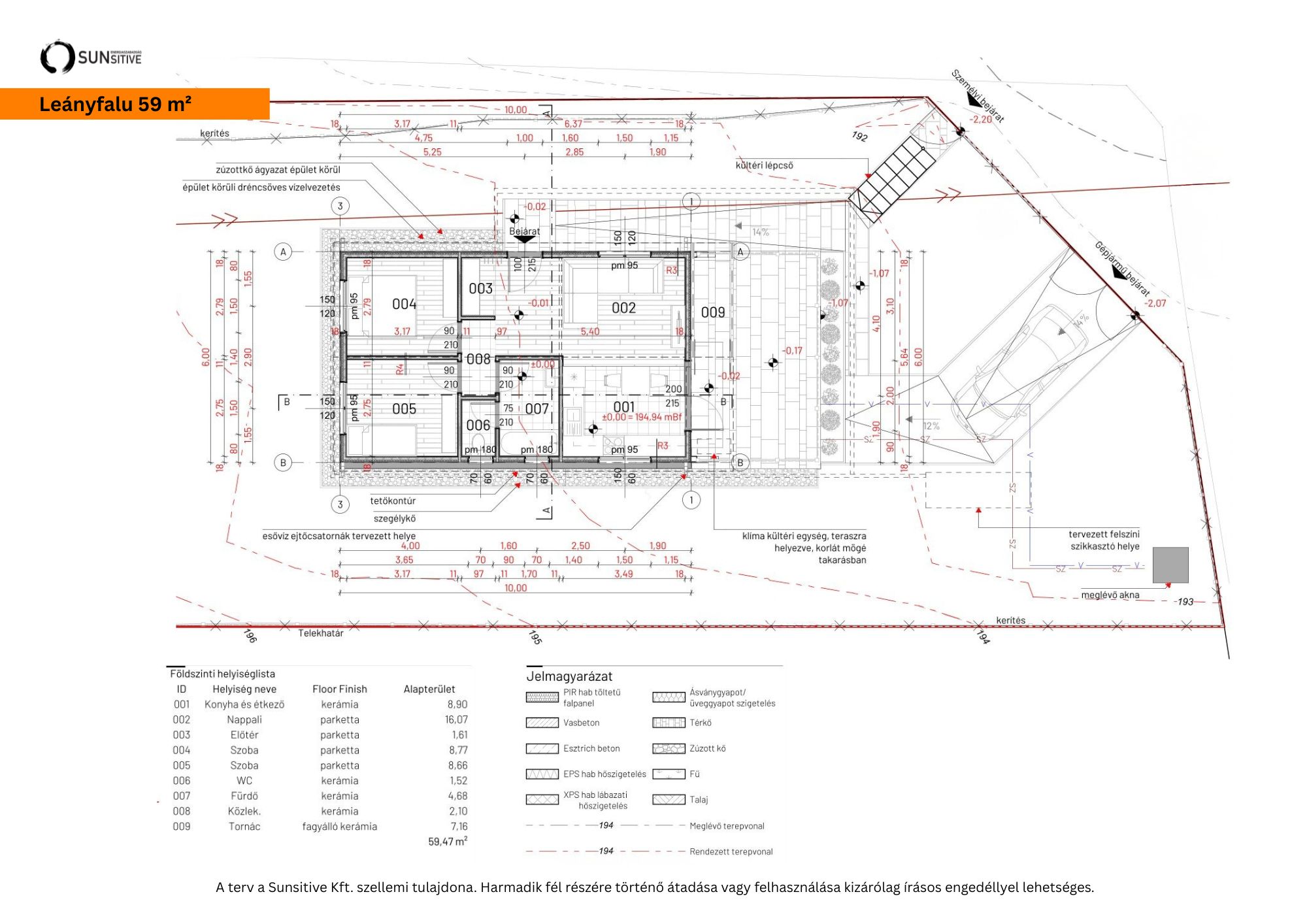
  • Nettó alapterület: 59
  • Helyiségek: Amerikai konyhás nappali, 2 hálószoba, 1 fürdőszoba
  • Elrendezés: praktikus, jól szeparált terek

műszaki jellemzők

  • Acélvázas technológia
  • Energetikai besorolás: A+
  • Finanszírozás: hitelezhető
  • Négyzetméter ár: szerkezetkész - 271 000 Ft-tól kulcsrakész - 657 000 Ft-tól

Választható kivitelek

  • Készültségi szint: szerkezetkész, külső kulcsrakész, fűtéskész vagy belső kulcsrakész kivitel

választható extrák

  • Napelemes rendszer
  • Klíma, hőszivattyú
  • Fedett terasz
  • Fedett kocsibeálló, garázs
  • Szauna, jakuzzi

Több mint egy egyszerű alaprajz: élhető jövőt építünk

Praktikus belső elrendezés

  • Amerikai konyhás nappali: 24,97 m²
  • Hálószoba: 8,77 m²
  • Hálószoba: 8,66 m²
  • Fürdőszoba: 4,68 m²
  • Wc: 1,52

Bármikor bővíthető

A Leányfalu 59 típus egyik legnagyobb előnye a rugalmas bővíthetőség: ahogy nő a család vagy változnak az igények, az otthon is könnyedén alakítható tovább. Nem szükséges előre nagyobb házban gondolkodni – elég, majd csak akkor bővíteni, amikor az valóban indokolttá válik. Így akár milliókat takaríthat meg, a helyszíni bővítés pedig mindössze egy napot vesz csupán igénybe, minimális felfordulással.

Alacsony energiafogyasztás

A Leányfalu 59 ház kiemelkedően energia-hatékony kialakításának köszönhetően a havi rezsiköltség átlagos használat mellett nem haladja meg a 10 ezer forintot – sőt, akár kevesebb is lehet.

Műszaki információk és testre szabható lehetőségek

Mitől olyan megbízható a Steeltech acélszerkezete?

A Steeltech acélszerkezetes házak alapját hidegen hajlított, horganyzott és porfestett acéllemez adja, amely kiemelkedő stabilitást és ellenálló képességet biztosít a környezeti hatásokkal és kártevőkkel szemben. A kiváló minőségű anyag biztosítja, hogy a ház hosszú távon is megőrzi integritását, így megbízható otthont kínál minden körülmények között. Az acélszerkezet gyorsan és egyszerűen összeszerelhető, daruzás nélkül is, így gyorsan birtokba veheted új otthonodat. A moduláris felépítésnek köszönhetően a ház könnyedén bővíthető, az elemek egymás mellé vagy egymás tetejére helyezhetők, így teljes mértékben testre szabható a különböző funkciókhoz. Telepíthető pontalapra, talajcsavarra vagy sávalapra is, így különböző talajviszonyokhoz is könnyedén alkalmazkodik.

Válassz készültségi szintet, mi pedig megvalósítjuk!

Kínálatunkban szerkezetkész és kulcsrakész megoldások egyaránt elérhetők, így rugalmasan alakíthatod a kivitelezési folyamatot. Ha gyors és zökkenőmentes beköltözést szeretnél, a kulcsrakész kivitel a legjobb választás. Természetesen, ha saját kezűleg szeretnéd befejezni az otthonod, a szerkezetkész opció is rendelkezésedre áll.

szerkezetkész kivitel

Akkor jó választás, ha biztos alapot szeretne, és a további lépések egy részét saját tempóban szervezné.

Acélszerkezet összeszerelve

Nyílászárók helye kialakítva

Födém és tető kész

Külső borítás a vázon

Ár: 15.98 M Ft-tól

külső kulcsrakész kivitel

Azoknak, akik gyorsabban szeretnének eljutni egy kívülről már kész és védett állapotig.

Nyílászárók beépítve

Tető és bádogozás kész

Külső szigetelés

Homlokzat kész színezés nélkül

Ár: 20.32 M Ft-tól

fűtéskész kivitel

Azoknak, akik a legjobb egyensúlyt keresik ár, készültség és továbblépési lehetőség között

Gépészet előkészítve

Belső válaszfalak készen

Villanyszerelés kialakítva

Vízszerelés kialakítva

Ár: 32.09 M Ft-tól

belső kulcsrakész kivitel

Azoknak, akik a lehető legkevesebb szervezéssel szeretnének eljutni a beköltözés közeli állapotig.

Festés & burkolatok kész

Beltéri nyílászárók készen

Szaniterek beszerelve

Fűtés indítható

Ár: 38.78 M Ft-tól


SUNSITIVE KFT. © copyright 2025. All RIghts Reserved - Minden Jog Fentartva

Adatvédelmi áttekintés

Ez a weboldal sütiket használ, hogy a lehető legjobb felhasználói élményt nyújthassuk. A cookie-k információit tárolja a böngészőjében, és olyan funkciókat lát el, mint a felismerés, amikor visszatér a weboldalunkra, és segítjük a csapatunkat abban, hogy megértsék, hogy a weboldal mely részei érdekesek és hasznosak.